< retour liste logements individuels
.
.
.
.
.
.
.
.
.
.
.
.
.
.
.
.
.
.
.
.
.
.
.
.
.
.
.
.
.
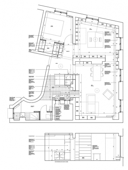
Restructuration d'un appartement - dessin du mobilier
Paris, France
2013
MAITRE D’OUVRAGE : Privé
SURFACE : SHAB 75 m²
COUT DES TRAVAUX : 85000 € HT
Entreprise: Atelier WA









